Industrial Louvers, Inc. expands its Velocity Series products
Delano, Minn. — Industrial Louvers, Inc. (ILI), a pioneer in innovative custom architectural metal solutions headquartered in Delano, Minn., has issued the newest addition to its high-performance Velocity Series louvers.
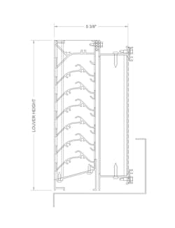
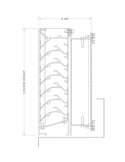
Designed to exceed industry standards, the VS5321 Louver from ILI represents a new pinnacle of impact and storm performance, meeting the most rigorous requirements of the Air Movement and Control Association (AMCA).
“The VS5321 Louver embodies our commitment to engineering excellence and customer satisfaction. It stands as a testament to our dedication to pushing the boundaries of innovation,” said ILI president Brett Reinhardt.
NEW LOUVER HAS PASSED AMCA IMPACT TESTS
The VS5321 Louver is one of the highest-performing on the market, having passed the AMCA 540 Impact Test and the AMCA 550 standard. The VS5321 maintains its integrity with a nine-pound, 2x4-inch missile shot at velocities of 35 and 55 mph for the AMCA 540 Impact Test. It passes the AMCA 550’s trial of withstanding wind-driven rain of up to 8.8 inches per hour combined with wind speeds of 110 mph without the need for a damper, allowing for critical airflow.
PROTECTION AGAINST SEVERE WEATHER
“The VS5321 Louver is not just a product; it’s a solution — a solution that offers unmatched protection against severe weather conditions while delivering optimal ventilation,” said Reinhardt. “It does so with a narrow profile that is easily incorporated into a variety of surrounding conditions, including curtain wall.”
For more information about the VS5321 Louver and ILI’s ventilation solutions, visit Industrial Louvers, Inc. or reach out to [email protected].
ABOUT INDUSTRIAL LOUVERS, INC.
Industrial Louvers, Inc. is a customer-focused woman-owned-and-operated manufacturer of custom architectural metal products, including architectural louvers, equipment screens, decorative grilles, sunshades, and column covers. Since 1971, ILI has met the needs of designers, contractors, and subcontractors across the construction industry. Our position as a leader in the industry is not only based on our reputation of crafting products of the highest quality and providing unmatched customer service but also draws from our commitment to sustainability, our employees, and our local community.


